Ruisweg 73, 4424 MN Wemeldinge
Basis
- Datum toegevoegd: 5 dagen geleden toegevoegd
- Type: Vrijstaande woning
- Categorie: Recreatiewoning
- Slaapkamers: 2
- Woonoppervlakte m2: 64
- Kavelgrootte m2: 320
- Inhoud m3: 246,27
- Energielabel: A (geldig tot 17-06-2033)
- Totaal aantal kamers: 3
- Etage: 0
- Badkamers: 1
- Bouwjaar: 2020
- Plattegronden:
Gebouwdetails
- Voorzieningen: Mechanische ventilatie, TV kabel, Schuifpui, Openslaande deuren
- Soort verwarming: Warmtepomp
- Isolatie: Volledig geïsoleerd, Dakisolatie, dubbel glas, HR-glas, muurisolatie en vloerisolatie
- Schuur: inpandig
- Parkeren: gratis parkeren, eigen terrein. Openbaar parkeren
Beschrijving
-
Beschrijving:
Aan de rand van Wemeldinge, op het kleinschalige vakantiepark Waterresort Oosterschelde, staat deze moderne recreatiewoning aan Ruisweg 73. Een fijne plek om te ontspannen, dichtbij zee, natuur en het gezellige dorpscentrum.
De woning staat op eigen grond en heeft een ruim perceel van 320 m². Met een woonoppervlak van circa 60 m² en een inhoud van 246 m³ is de woning praktisch en comfortabel ingedeeld. Alles is gelijkvloers en daardoor prettig en toegankelijk.
Binnen valt direct de lichte en ruime woonkamer op, met grote ramen en een elektrische open haard voor extra sfeer. De open keuken met kookeiland is modern uitgevoerd en vormt een fijne plek om samen te koken en te eten. De woning beschikt over twee slaapkamers, een moderne badkamer, en een inpandige berging.
De recreatiewoning is gebouwd in 2020, volledig geïsoleerd en onderhoudsarm. Dankzij het energielabel A is de woning energiezuinig en comfortabel in alle seizoenen.
Buiten is volop ruimte om te genieten van rust en privacy, met plek voor een terras en zitjes in de zon of juist in de schaduw.
Het vakantiepark is klein en netjes opgezet en ligt op korte afstand van de Oosterschelde, ideaal voor wandelen, fietsen en watersport.
Het park beschikt over diverse voorzieningen die het verblijf extra comfortabel maken, zoals mogelijkheden voor elektrisch laden en fietsverhuur.
Kortom: een moderne en complete recreatiewoning op een mooie en rustige locatie, geschikt voor eigen gebruik of als fijne plek voor familie en gasten. Kom de sfeer zelf ervaren en laat je verrassen door alles wat deze plek te bieden heeft.
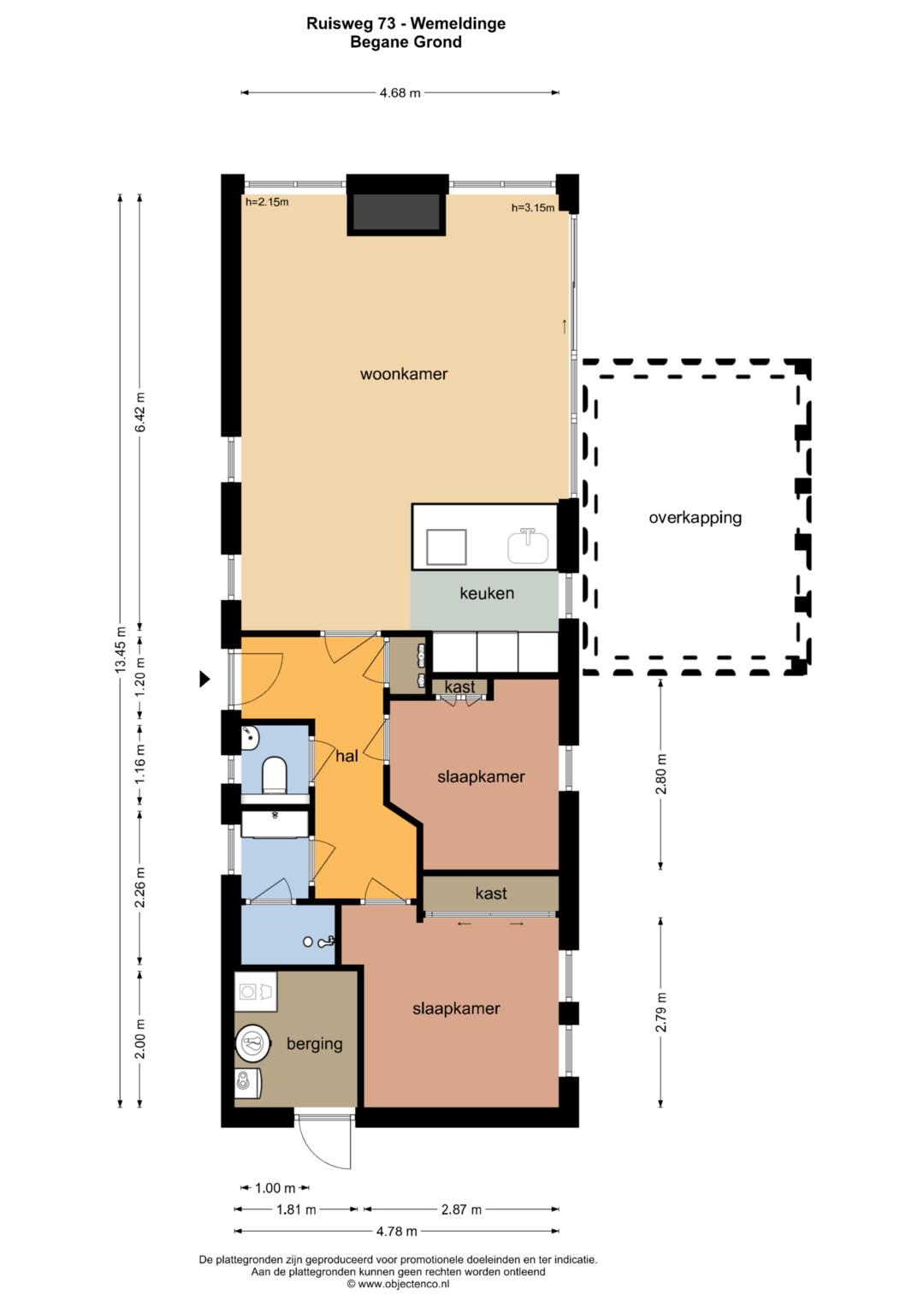
Entree
Je komt de woning binnen in de hal/entree met meterkast en van hieruit heb je toegang tot alle vertrekken.
Wonen & koken
De lichte en ruime woonkamer is aan de achterzijde van de woning en biedt een prachtig uitzicht op de tuin met terrassen, het gazon, een waterpartij en de groene omgeving. Grote raampartijen zorgen voor veel daglicht en verbinden binnen met buiten. De woonkamer is sfeervol ingericht met een elektrische haard, laminaatvloer en een stijlvolle afwerking die bijdraagt aan het luxe vakantiegevoel. De moderne open keuken sluit naadloos aan op de woonkamer en is voorzien van een kook-/spoeleiland én een strakke kastenwand met twee handige apothekerskasten en ingebouwde apparatuur. Hier kook je met gemak dankzij onder meer een inductiekookplaat, geïntegreerde afzuigkap, combimagnetron, oven, koelvriescombinatie en vaatwasser.
Via zowel de schuifpui in de woonkamer als de deur in de keuken is er directe toegang tot het terras. Daarnaast zijn er aansluitingen aanwezig voor televisie en internet.
Slapen, Dromen, Douchen
De woning beschikt over twee comfortabele slaapkamers. De grootste slaapkamer is voorzien van een ingebouwde kledingkast met schuifdeuren. De tweede slaapkamer is eveneens voorzien van kastruimte en beschikt over een hang-/legkast. In de slaapkamers is de laminaatvloer doorgelegd, waardoor de woning één mooi geheel vormt. De moderne badkamer heeft een ruime inloopdouche, een wastafelmeubel, spiegel met verlichting en designradiator. Het toilet is apart en beschikt over een fonteintje.
Berging / Wasruimte
De inpandige berging is van buitenaf bereikbaar. Hier vind je de warmtepompunit en boiler, de mechanische ventilatie-unit én een wasmachine en droger.
Tuinieren, Zonnen & Genieten
De tuin rondom de woning is netjes aangelegd en goed onderhouden, met meerdere terrassen, waaronder een sfeervol houten vlonderterras, diverse beplanting, een gazon en diverse zitplekken. Aan de zijkant vind je een ruime overkapping waar het tot in de late uurtjes goed vertoeven is. De tuin grenst aan een waterpartij en biedt mooi zicht op de groene omgeving. Hier kom je écht tot rust.
De woning wordt aangeboden inclusief uitgebreid tuinmeubilair, waaronder een royale eettafel met bank voor ca. 6 tot 8 personen, een tafel, meerdere losse zitmeubels en ligstoelen. Hierdoor kun je op elk moment van de dag comfortabel buiten verblijven.
Daarnaast is de woning voorzien van horren: beide slaapkamers beschikken over uitneembare horren, één raam in de woonkamer is voorzien van een hor en bij de schuifpui is een roldeur geplaatst.
Tot slot
Deze fijne vakantiewoning op steenworp afstand van de Oosterschelde en midden in de natuur combineert comfort, ligging en kwaliteit op een unieke manier. Met twee slaapkamers, een ruime tuin, een overdekt terras, eigen oprit, berging en alle denkbare voorzieningen is dit een perfecte uitvalsbasis voor ontspannen weekends weg of heerlijke vakanties. Compleet met inboedel. Een buitenkans voor eigen gebruik én als investering. Plan snel een bezichtiging en ervaar deze complete vakantiewoning op een fantastische plek zelf!
Kenmerken
* recreatiewoning * vrijstaand * gelijkvloers * perceel 320 m2 * woonoppervlakte 64 m2 * inhoud 246 m3 * bouwjaar 2020 * 2 slaapkamers * lichte woonkamer met elektrische haard * luxe open keuken * moderne badkamer * tuin rondom * comfortabele tuinmeubels en overdekt terras * buitenkraan * eigen oprit * HR++ isolatieglas * op eigen grond * volledig geïsoleerd en onderhoudsarm * energielabel A * voor eigen gebruik of verhuur * woning wordt verkocht inclusief inboedel * rustige ligging aan de rand van Wemeldinge * gelegen op kleinschalig vakantiepark * vlak bij de Oosterschelde * perfecte uitvalsbasis om te duiken * ideale omgeving voor wandelen, fietsen en watersport * Goes, winkelstad van Zeeland, op 7 km afstand *
Let op: bij aankoop is de koper overdrachtsbelasting verschuldigd van 8% van de verkoopprijs.
Toelichting
BN Makelaar is zorgvuldig als het gaat om het geven van juiste informatie. We kunnen echter niet garanderen dat deze informatie altijd foutloos en volledig is. Daarom kunnen aan deze presentatie geen rechten worden ontleend.
Video
- Video:
