Grootmede 47, 4337 AB Middelburg
Basis
- Datum toegevoegd: 8 maanden geleden toegevoegd
- Type: Hoekwoning
- Categorie: Eengezinswoning
- Slaapkamers: 4
- Woonoppervlakte m2: 119 Bruto vloeroppervlak woning 183,42
- Kavelgrootte m2: 257
- Inhoud m3: 508
- Energielabel: C geldig tot 25-09-2035
- Totaal aantal kamers: 6
- Etage: 4
- Badkamers: 1
- Bouwjaar: 1976
- Plattegronden:
Gebouwdetails
- Voorzieningen: Mechanische ventilatie, TV kabel, Rookkanaal, Schuifpui, Glasvezel kabel
- Soort verwarming: CV ketel Remeha Tzerra (2017), Open haard
- Isolatie: Dakisolatie, Muurisolatie, Dubbel glas, HR++ glas
- Garage: 1
- Schuur: Vrijstaand hout
- Parkeren: gratis openbaar parkeren
Beschrijving
-
Beschrijving:
Ruime en lichte hoekwoning met zonnige tuin
Ben je op zoek naar een fijne gezinswoning met veel ruimte en comfort? Dan is deze split-level hoekwoning echt iets voor jou! De woning heeft energielabel C en beschikt over een inpandige garage, een ruime woonkeuken, een sfeervolle woonkamer, vier slaapkamers en een royale tuin met veel privacy. De woning ligt in een rustige en kindvriendelijke buurt, in een straat waar weinig auto’s komen. In de directe omgeving vind je alle belangrijke voorzieningen, zoals een supermarkt, winkelcentrum en medisch centrum met huisarts, tandarts en apotheek. Ook qua bereikbaarheid zit je hier goed. Het centrum van Middelburg, het station en de Mortiere woonboulevard zijn makkelijk te bereiken met de fiets. Via de N57 en A58 ben je snel onderweg naar Veere, Domburg, Goes, Rotterdam of Antwerpen.
Entree
Je komt binnen in een nette hal met toegang tot het toilet, de meterkast en een aparte kast voor de cv-installatie. Vanuit de hal loop je door naar de ruime inpandige garage. Hier is plek voor je auto, fietsen en extra opslag. Ook vind je hier de aansluitingen voor de wasmachine en de droger. Achterin de garage is er nog een souterrain/bergruimte. Deze ligt iets lager en heeft geen stahoogte, maar is ideaal voor het opbergen van spullen die je niet dagelijks nodig hebt. De garage is ook van buitenaf bereikbaar, via een aparte loopdeur.
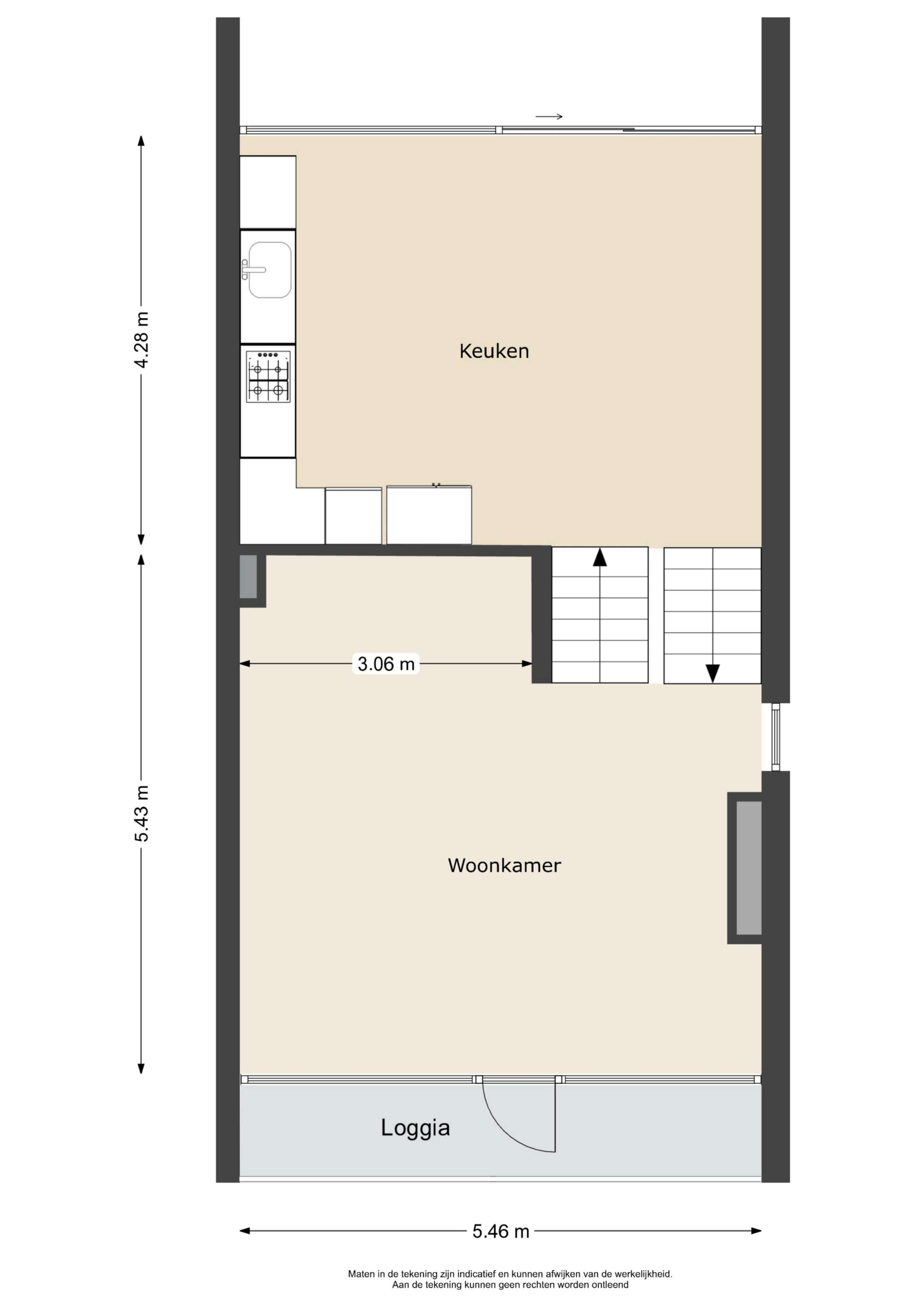
Tussenverdieping - Woonkeuken
Via een korte trap vanuit de hal kom je in de ruime woonkeuken. De moderne keuken is in 2023 vernieuwd en voorzien van een kunststof werkblad, inductiekookplaat, afzuigkap, oven, magnetron en vaatwasser. De laminaatvloer geeft de keuken een moderne en strakke uitstraling. Er is ook een tv-aansluiting, zodat je tijdens het koken of eten gezellig kunt meekijken. Via de schuifpui heb je toegang tot de achtertuin.
Eerste verdieping – Woonkamer
Op de eerste verdieping vind je de lichte woonkamer met een grote raampartij aan de voorzijde van de woning. Hierdoor komt er veel daglicht binnen en voelt de ruimte extra ruim aan. De sfeervolle open haard zorgt voor warmte en gezelligheid, vooral in de koudere maanden. Via de woonkamer heb je toegang tot de loggia. De vloer is afgewerkt met een laminaatvloer in houtlook.
Tussenverdieping – Overloop & twee slaapkamers
Op de tussenverdieping kom je via de overloop bij twee slaapkamers, beide gelegen aan de achterzijde van de woning. Deze kamers zijn netjes afgewerkt en hebben een doorlopende laminaatvloer in antracietkleur.
Slaapkamer 1 is een fijne kamer met twee draaikiepramen in kunststof kozijnen, waardoor er veel licht binnenkomt. De spotjes in het plafond geven de ruimte een moderne sfeer.
Slaapkamer 2 is iets ruimer dan slaapkamer 1 en heeft ook kunststof kozijnen, twee draaikiepramen en spotjes in het plafond.
Beide kamers zijn ideaal als slaap-, werk- of logeerkamer.
Tweede verdieping – Overloop, twee slaapkamers en badkamer
Op de tweede verdieping kom je via de overloop bij twee slaapkamers en een moderne badkamer.
De grootste slaapkamer – slaapkamer 3 heeft kunststof kozijnen met twee draaikiepramen, wat zorgt voor veel licht. De kamer is netjes afgewerkt met een laminaatvloer en spotjes in het plafond.
De kleinere slaapkamer – slaapkamer 4 is ook keurig afgewerkt en heeft één draaikiepraam, kunststof kozijnen, een laminaatvloer (doorgelegd) en spotjes in het plafond.
Ook deze kamers zijn ideaal als slaap-, werk- of logeerkamer.
De badkamer is uitgevoerd in een stijlvolle zwart-wit kleurstelling en is volledig betegeld. Je vindt hier een ligbad met douche, een wastafel met meubel en spiegelkast, een toilet en mechanische ventilatie. De vloertegels maken het geheel compleet en zorgen voor een nette afwerking.
Tuin
De woning heeft een royale tuin die ligt op het zuidoosten, aan de achterzijde én zijkant van het huis. Door de ligging en de nette schutting met betonpalen rondom heb je hier veel privacy. Je bereikt de tuin via de schuifpui in de woonkeuken of via de poort naast de woning. Direct achter de woning ligt een terras, en via een aantal treden stap je zo vanuit de woning de tuin in. Hier vind je een gazon, meerdere terrassen en achterin een tuinhuis met overkapping. Het tuinhuis is voorzien van elektriciteit en bedraad internet. In de tuin zelf is er ook een wateraansluiting en elektriciteit aanwezig. Aan de zijkant, tegen de woning aan is een overkapping met schuurtje, handig voor fietsen, tuingereedschap of als extra opslag. Grenzend aan de achtertuin ligt een openbare groenstrook met bomen en een zitgelegenheid.
Parkeren kan in de garage, en daarnaast is er voldoende parkeergelegenheid voor de woning en in de straat.
Tot slot
Deze ruime hoekwoning met speelse indeling heeft veel te bieden. Met vier slaapkamers, een woonkeuken, een sfeervolle woonkamer en een ruime, zonnige tuin is dit een fijne plek om te wonen. En de ligging in een rustige en kindvriendelijke buurt, dichtbij voorzieningen en uitvalswegen, maakt het extra aantrekkelijk. Een praktische en complete woning waar je zo in kunt. Nieuwgierig? Plan snel een bezichtiging in!
Kenmerken
* hoekwoning (split-level) * 508 m3 inhoud * 119 m2 woonoppervlakte * perceeloppervlakte 257 m2 * bouwjaar 1976 * 4 slaapkamers * woonkeuken * moderne badkamer * inpandige garage * schuurtje met overkapping * tuinhuis met overkapping * tuin op het zuidoosten * volledig dubbelglas * grotendeels kunststof kozijnen * kunststof gevelbekleding (2024) * dak vernieuwd (2024) * cv-ketel Remeha Tzerra (2017) * energielabel C * voldoende parkeergelegenheid *
Toelichting
BN Makelaar is zorgvuldig als het gaat om het geven van juiste informatie. We kunnen echter niet garanderen dat deze informatie altijd foutloos en volledig is. Daarom kunnen aan deze presentatie geen rechten worden ontleend.
