Cirkel 89, 4384DS Vlissingen
Basis
- Datum toegevoegd: 2 maanden geleden toegevoegd
- Type: Tussenwoning
- Categorie: Eengezinswoning
- Slaapkamers: 4
- Woonoppervlakte m2: 113
- Kavelgrootte m2: 135
- Inhoud m3: 370
- Energielabel: A (geldig tot 25-03-2036)
- Totaal aantal kamers: 5
- Etage: 2
- Badkamers: 1
- Bouwjaar: 1996
- Plattegronden:
Gebouwdetails
- Voorzieningen: Mechanische ventilatie, Rolluiken, TV kabel, Natuurlijke ventilatie
- Soort verwarming: CV ketel Nefit Topline (2011)
- Schuur: Vrijstaand steen
- Parkeren: gratis openbaar parkeren
Beschrijving
-
Beschrijving:
Aan de Cirkel 89 in Vlissingen staat deze verzorgde tussenwoning uit 1995. Een huis met een fijne sfeer, vier slaapkamers en een diepe tuin op het noordoosten. De straat is rustig en kindvriendelijk, met speelplekken en groen in de buurt. Benieuwd hoe het er in het echt uitziet? Je bent van harte welkom om een kijkje te komen nemen.
Entree
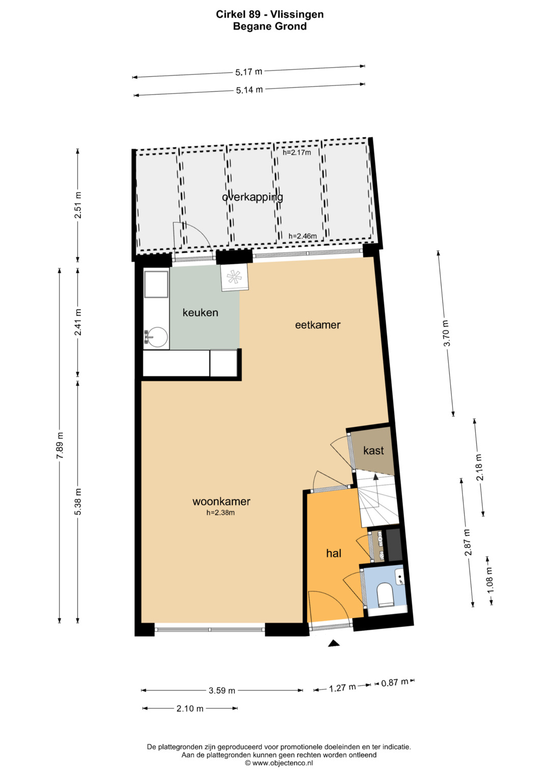
Je komt binnen in de hal met ruimte voor een garderobe. Hier vind je ook het toilet, de meterkast en de trap naar de eerste verdieping. Vanuit de hal loop je door naar de woonkamer.
Wonen & Koken
Woonkamer
De lichte woonkamer ligt aan de voorzijde van het huis. Aan de achterzijde vind je de eetkamer, met mooi zicht op de achtertuin. In de woonkamer bevindt zich een praktische trapkast voor extra bergruimte. De laminaatvloer geeft de ruimte een verzorgde en rustige uitstraling. Vanuit de woonkamer loop je door naar de keuken.
Keuken
De halfopen keuken ligt aan de achterzijde van de woning. Het is een hoekkeuken die is voorzien van een elektrische kookplaat met afzuigkap, een oven, een vaatwasser en een vrijstaande koelkast. De keuken is netjes maar wel aan vernieuwing toe. Vanuit de keuken heb je direct toegang tot de achtertuin.
Slapen, Dromen & Douchen
Op de eerste verdieping kom je op de overloop die toegang geeft tot drie slaapkamers en een badkamer.
Slaapkamers
De master bedroom ligt aan de voorzijde van het huis. Aan de achterzijde bevinden zich slaapkamer 2 (links) en slaapkamer 3 (rechts). Alle drie de kamers zijn voorzien van een laminaatvloer en hebben elektrische rolluiken.
Badkamer
De badkamer is modern en volledig betegeld. De ruimte is ingericht met een toilet, een wastafel met meubel en een praktische spiegelkast. Verder vind je hier een ligbad, een inloopdouche en elektrische vloerverwarming. Dankzij het kiepraampje kan de badkamer goed worden geventileerd.
Op de overloop bevindt zich ook een inbouwkast voor extra bergruimte.
Zolder
De zolder is bereikbaar via een vaste trap. De zolderverdieping bestaat uit een overloop en een extra slaapkamer. De overloop is licht door de aanwezige ramen. Hier vind je de mechanische ventilatie-unit, de aansluitingen voor de wasmachine en droger en de cv-ketel. De ruimte is afgewerkt met een laminaatvloer.
De extra slaapkamer is royaal en praktisch ingedeeld. Langs bijna de volledige breedte van de kamer staat een kast met schuifdeuren, waardoor je veel bergruimte hebt. Ook hier ligt een nette laminaatvloer.
Tuinieren, zonnen & genieten
Tuin
De achtertuin ligt op het noordoosten en is volledig betegeld met natuursteen tegels, waardoor de tuin onderhoudsarm is. Aan de achtergevel bevindt zich een aluminium overkapping met polycarbonaat dak, waardoor je ook bij minder mooi weer prettig buiten kunt zitten. De tuin is rondom voorzien van een schutting, wat zorgt voor privacy. Via de achterom poort bereik je direct de stenen berging van circa 7 m2, ideaal voor het stallen van fietsen en het opbergen van gereedschap en andere spullen.
Tot slot
Alles bij elkaar is dit een nette en complete gezinswoning op een fijne locatie. Met vier slaapkamers, een diepe tuin en alle voorzieningen op korte afstand, biedt dit huis alles voor prettig en comfortabel wonen. We laten het je graag in het echt zien. Nieuwsgierig geworden? Maak gerust een afspraak voor een bezichtiging.
Kenmerken
* tussenwoning * 370 m3 inhoud * 113 m2 woonoppervlakte * perceeloppervlakte 135 m2 * bouwjaar 1995 * HR dubbelglas * lichte woonkamer met eetgedeelte aan de tuinzijde * halfopen keuken * vier slaapkamers ( 3 op de eerste verdieping, 1 op zolder) * moderne badkamer met ligbad, inloopdouche, toilet en vloerverwarming * elektrische rolluiken op de eerste verdieping * zolder met wasmachine- en drogeraansluiting, cv-ketel (Nefit Topline 2011) en extra slaapkamer * tuin op het noordoosten en volledig betegeld met natuursteen, overkapping van aluminium met polycarbonaat dak * schutting rondom voor privacy * achterom met toegang tot stenen berging (ca. 7m2) * dichtbij allerlei voorzieningen zoals: winkels, basisscholen, kinderopvang en supermarkt * gelegen in een rustige en kindvriendelijke wijk * speelplekken en groene veldjes in de directe omgeving * strand en boulevard van Vlissingen op fietsafstand *
Toelichting
BN Makelaar is zorgvuldig als het gaat om het geven van juiste informatie. We kunnen echter niet garanderen dat deze informatie altijd foutloos en volledig is. Daarom kunnen aan deze presentatie geen rechten worden ontleend.
Video
- Video:
